Salas de vistas, salón de bodas, Registro Civil y espacio para detenidos: así será la distribución del Cubo como edificio judicial

El proyecto básico detalla cómo será la adaptación del edificio, que tendrá espacio libre en todas las plantas para futuros crecimientos

Reforma del Cubo para la Ciudad de la Justicia de Granada: más inversión, espacio para crecer y en marcha en 2028

Sección del edificio .
Sección del edificio . / Junta de Andalucía

La adaptación del Cubo a Ciudad de la Justicia ya tiene manual de instrucciones. El proyecto básico ha detallado cómo serán las plantas del nuevo edificio judicial que abrirá en 2028 y qué albergará cada una, un proyecto que mantiene el diseño premiado del arquitecto Campo Baeza pero que hay que adaptar a las necesidades de todos los operadores jurídicos y que tendrá más uso que el que ha tenido hasta ahora como sede bancaria, donde solo acudían trabajadores y clientes. Ahora, trámites tan generales como el Registro Civil se harán en el Cubo, además de juicios, bodas y numerosos actos judiciales en los que participan miles de personas, trabajadores y usuarios.

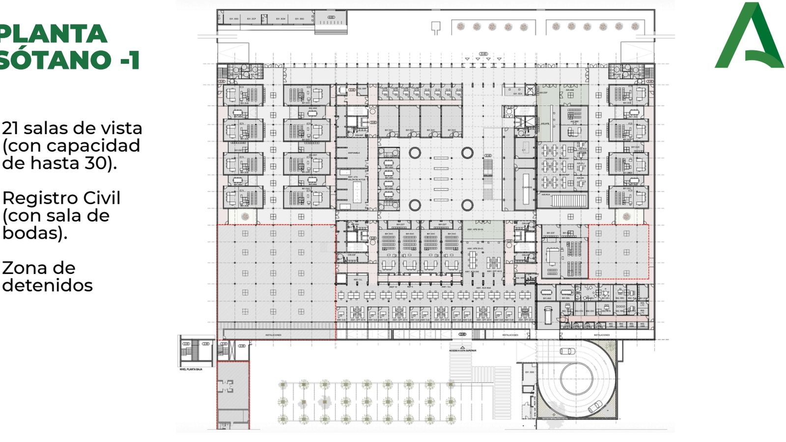
Aunque habrá plantas de acceso restringido a la población general ya que estarán reservadas para los funcionarios y trabajadores del sector, la planta -1 va a ser la más transitada. Es la que ahora queda bajo el Cubo pero sobreelevada de la zona de entrada y del patio trasero de naranjos, que también tendrá más visibilidad ya que se abrirá ahí la entrada de público general a las salas de vistas.

La planta -2 será de instalaciones de mantenimiento, vestuarios y archivo. El parking tendrá 266 plazas, entre interior y exterior.

Distribución del sótano -2.
Distribución del sótano -2. / Junta de Andalucía

La planta -1 será la más importante en la transformación y como se ha dicho la más transitada por la ciudadanía. Es lo que se llama planta jardín ya que está en un falso sótano respecto a la cota de calle pero elevada sobre rasante. Además, se transformará estéticamente respecto a lo que se ve ahora en el Cubo ya que se va a construir una gran escalera que conecte esta planta con la planta baja (atrio), por lo que podrá haber acceso directo. Además, se abrirá en la parte trasera, dando al patio de los naranjos, hasta ahora poco transitado por el público, la entrada pública a la planta. Es la que albergará las salas de vistas, donde se desarrollan los juicios, de un total de 42 órganos ya que albergará toda la jurisdicción no penal, es decir, que se desarrollarán ahí todos los asuntos de Civil, Familia, Contencioso-Administrativo, Mercantil y Social, además de la mediación y de la Audiencia Provincial (seccciones Penal y Civil). En esa planta estará también el Registro Civil, muy demandado para trámites públicos de inscripción de nacimiento, filiación, nombres y apellidos y cambios, emancipación, concursos, quiebras, ausencias o fallecimientos, nacionalidad, patria potestad, tutelas, matrimonios y defunciones.

Distribución del sótano -2.
Distribución del sótano -2. / Junta de Andalucía.

Además en esa planta irá también la sala de bodas, vinculada al Registro Civil, y la zona de detenidos para estar más cercana a las salas de vistas y acortar desplazamientos garantizando mayor seguridad.

La planta baja albergará a colegios profesionales, servicio de mediación, parte del servicio común de ejecución además de salón de actos, que se mantiene el que ya hay en el edificio con 775 metros cuadrados y 384 asientos. "Es bueno que la capital judicial tenga espacio para actividades de todo tipo que vinculen a la justicia con la ciudad".

Distribución de la planta baja.
Distribución de la planta baja. / Junta de Andalucía

La planta 1 se adaptará al completo para el servicio común de ejecución de Civil, Familia, Mercantil, Contencioso y Social.

Distribución de la planta 1.
Distribución de la planta 1. / Junta de Andalucía

La planta 2 será para la sección de lo Contencioso-Administrativo, la sección de lo Social y sus respectivos servicios de tramitación. Desde esta planta a la 6 todas tienen la misma superficie y el mismo aprovechamiento de 1.792 metros cuadrados, salvo la sexta que tiene características especiales y adaptará más superficie.

Distribución de la planta 2.
Distribución de la planta 2. / Junta de Andalucía

En la planta 3 irá la sección Civil y parte del servicio común de tramitación de Civil, Familia, Infancia y Mercantil.

Distribución de la planta 3.
Distribución de la planta 3. / Junta de Andalucía

En la planta 4 irá la sección de Familia e Infancia, equipos psicosociales de Familia, la sección Mercantil y parte del servicio común de tramitación de estas jurisdicciones, además de la Fiscalía Provincial de Granada mientras va al edificio que se construya para Penal. 

Distribución de la planta 4.
Distribución de la planta 4. / Junta de Andalucía

En la 5 irán las secciones Civil y Penal de la Audiencia Provincial con su servicio común de tramitación.

Distribución de la planta 5.
Distribución de la planta 5. / Junta de Andalucía

En la planta 6 se ubicará la presidencia de la Audiencia Provincial, la coordinación provincial de LAJ y la presidencia del tribunal de instancia a la espera de qué se hace con la Fiscalía, que lo lógico es que tenga más presencia en el futuro edificio penal.

Distribución de la planta 6.
Distribución de la planta 6. / Junta de Andalucía
stats