Nuevo salón de celebraciones en la Vega de Granada: el Cortijo Piedras Blancas se convertirá en restaurante

Municipal

El proyecto recoge la reconversión del cortijo y otras dos edificaciones interiores para esta actividad, que podría generar 8 puestos de trabajo directos y 15 indirectos

Nuevo salón de celebraciones en la Vega de Granada: el Cortijo Piedras Blancas se convertirá en restaurante
Nuevo salón de celebraciones en la Vega de Granada: el Cortijo Piedras Blancas se convertirá en restaurante / Maps

Granada sigue activando proyectos económicos que estaban pendientes de resolución y uno de ellos es el de la conversión del Cortijo Piedras Blancas, en la calle Virgen Blanca, 24, en la Vega, en salón de celebraciones y restaurante, dentro del boom de este tipo de establecimientos para celebraciones que proliferan en la capital y municipios del cinturón en edificaciones abandonadas.

El pasado 22 de octubre de 2020 se admitió a trámite por decreto de Alcaldía el proyecto de actuación para la adecuación del cortijo, que ha sido expuesto a información pública para alegaciones. Un proyecto incoado a instancia de Joaquín Eduardo Dessy Martínez.

Según el documento, al que ha tenido acceso este periódico, este uso no vinculado a la explotación agrícola, pecuaria, forestal o análoga en un terreno con el régimen de suelo no urbanizable, se permite en la Ley de Ordenación Urbanística de Andalucía (LOUA) mediante aprobación de proyecto de actuación y, en su caso, licencia. En lo referente a los usos de la edificación, se permite el “salón de celebraciones” y "restaurante” al encontrarse incluidos entre los usos relacionados con el Ocio y el Recreo (Merenderos y Ventas) en aquellas huertas incluidas en el inventario. En este caso, el Cortijo Piedras Blancas se encuentra incluido en el inventario de edificaciones rústicas a través de la Innovación al PGOU tramitada a tal efecto y aprobada con fecha de 28-3-2014. En cuanto a los usos del suelo permitidos en la subcategoría de Protección Agrícola Activa, el correspondiente al “salón de celebraciones” y “restaurante” no aparece entre los usos permitidos ni entre los prohibidos, por lo que su compatibilidad resulta de la declaración de utilidad pública e interés social que se insta por medio del presente Proyecto de Actuación.

En el proyecto se pretende adecuar las edificaciones actuales para la actividad de salón de celebraciones y restaurante. Estas edificaciones ya fueron objeto de una innovación del PGOU de Granada para su inclusión en el Inventario de Edificaciones Rústicas, aprobada definitivamente en Pleno en el año 2014.

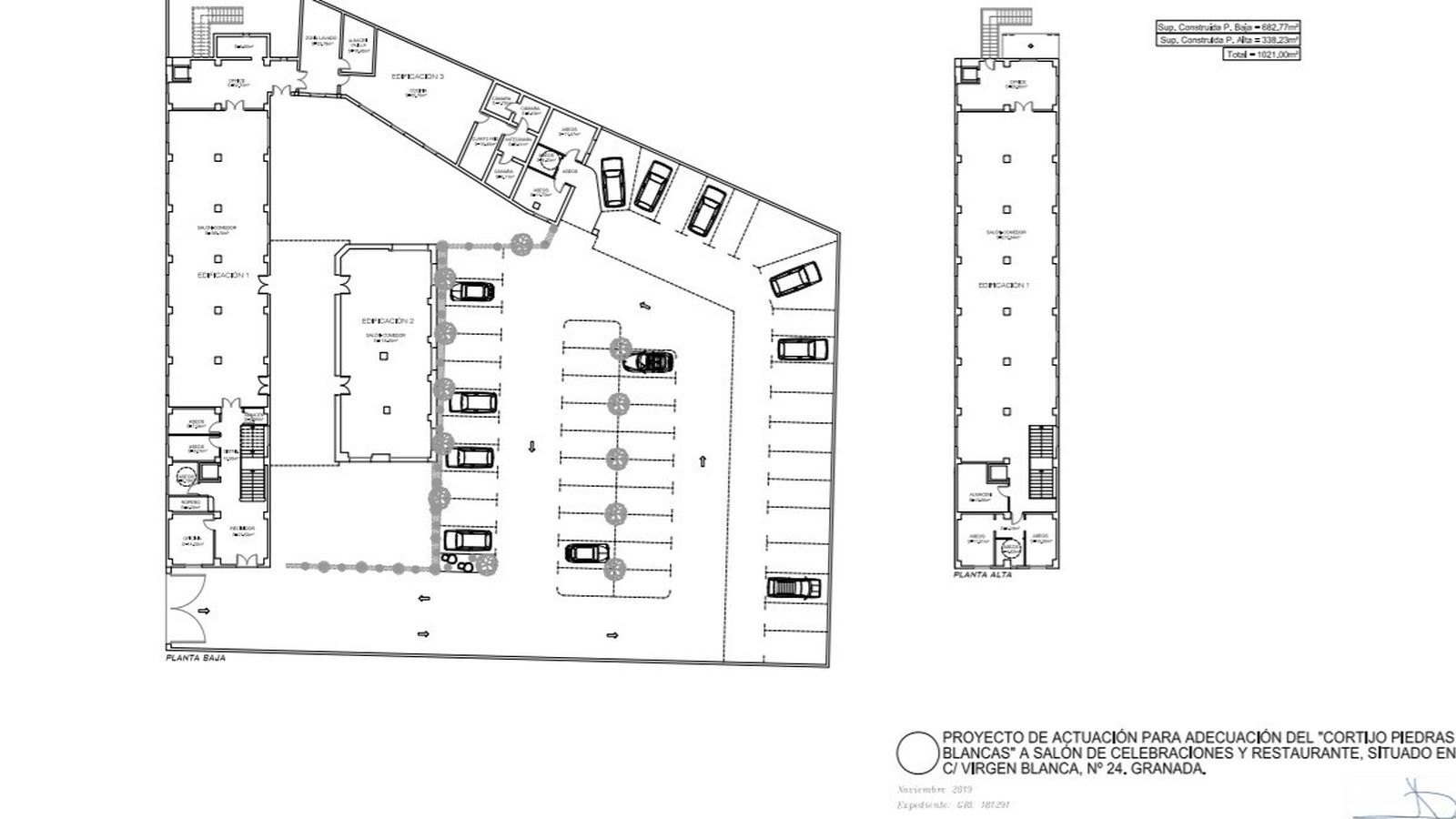
La superficie de la parcela es de 2.652,13 metros cuadrados y las edificaciones tienen una superficie edificada de 1.021 metros cuadrados. Son dos parcelas catastrales en el borde oeste de la ciudad, con acceso por la calle Virgen Blanca y por el callejón de la Acequia Gorda, sumando la superficie vinculada a la actuación un total de 5.216,13 metros cuadrados.

Plano de distribución de la reforma
Plano de distribución de la reforma / G. H.

En la primera parcela está el cortijo Piedras Blancas, donde se ubicarían las actividades de salón de celebraciones, restaurante y aparcamiento. La segunda está destinada a cultivo agrícola, el cual se pretende mantener sin perjuicio de que quede vinculado a la actuación, recoge el informe.

Según el PGOU, los terrenos donde están las instalaciones están clasificados como Suelo No Urbanizable y dentro de esta, en la categoría de Especial Protección Agrícola y dentro de esta en Protección Agrícola a Regenerar. Por su parte, el POTAUG zonifica los terrenos como integrantes del Sistema de Asentamientos.

En el proyecto, se defiende que la actividad supone una serie de "características socio-económicas interesantes, teniendo en cuenta el entorno donde se localiza". Así, se prevé que la actividad genere entre 6-8 puestos de trabajo directos además de otros 12-15 eventuales "en función de la actividad que se desarrolle en cada caso y que por las características de la misma, bien puede ser desempeñado por vecinos de Granada". Además, la actividad requiere "su implantación en lugares externos a los núcleos urbanos, aunque relativamente próximos, y de una cierta extensión". Es un entorno rural, tranquilo y relativamente aislado, por lo que "no traslada molestias a poblaciones vecinas".

El cortijo en sí tiene dos plantas con una superficie construida de 700,67 metros cuadrados. Junto a este hay otra edificación de planta baja de 140,78 metros cuadrados. Hay una tercera edificación de una planta de altura con una superficie de 179,55 metros cuadrados, de estructura metálica y cubierta de chapa, sin cerramiento frontal.

Las obras necesarias para la adecuación sería la redistribución interior para salón de celebraciones y sus instalaciones necesarias (recibidor, ropero, aseos, almacén y oficce) eliminando uno de los accesos exteriores. En la segunda edificación se eliminarían las divisiones interiores para adaptación a salón y comedor, previendo una marquesina como continuación del cortijo. La tercera edificación se quiere cubrir y cerrar su fachada frontal, instalándose ahí la zona de cocina, almacenes, cámaras, zona de lavado y aseos.

Además, aprovechando la superficie ya explanada y pavimentada usada para las labores agrícolas anteriores desarrolladas en el cortijo, se dispondrán 50 plazas de aparcamiento para uso de la actividad prevista.

El presupuesto total estimado asciende a una inversión de 92.000 euros entre obras de adecuación de las edificaciones y la urbanización exterior (ajardinamiento y aparcamiento). Las obras tendrían un plazo de ejecución desde su inicio de 4 meses.

En el proyecto se recoge que esta actividad se considera "de utilidad pública e interés social ya que representa una actividad económica beneficiosa para el desarrollo del municipio", aportando un "servicio a los ciudadanos". Además, se destaca que la intervención urbanística no presenta ningún tipo de afección directa.

Se calcula que el tiempo para garantizar la amortización y la viabilidad de la inversión es de 20 años, que es el tiempo por el que piden el plazo de duración de la cualificación urbanística de los terrenos, con posibilidad de prórroga.

stats